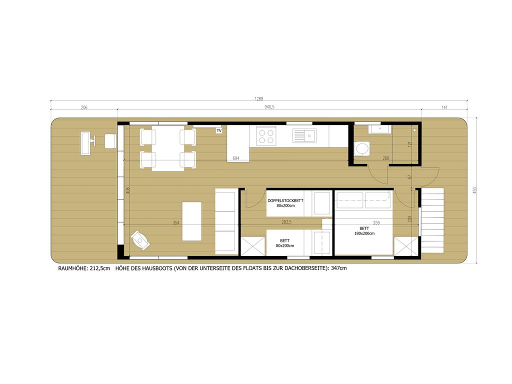
Woma D13* Enjoy Deutschland Röblinsee Marina Type mieten | SailNomad